FORNYELSE AV HELLEMYR KIRKE forslag    
   
         
   
  Kirken er bygget i byggetrinn med stor dugnadsinnsats. Første byggetrinn var ferdig i 1988. Kirken er tegnet av siv.ark Arild Lauvland.

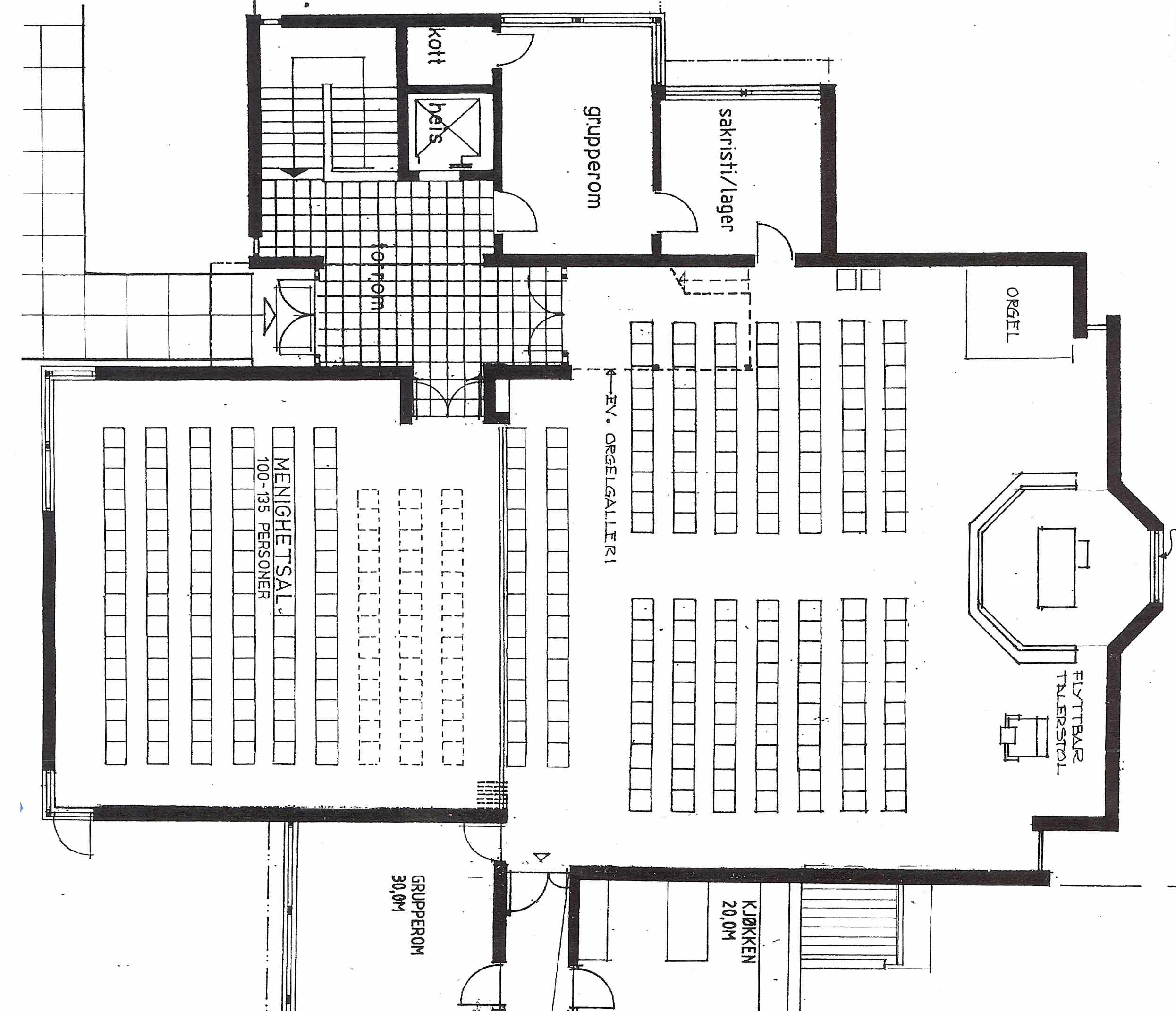
Kirkerommet er kvadratisk, men det er møblert som om det skulle være en langkirke. Alle liturgiske møbler er fremme i rommet, oppstilt ved siden av hverandre.

En meget høy foldevegg knytter menighetssalen sammen med kirkerommet. Nå ønsker menig-heten å ta bort foldeveggen, og la kirkerom og menighetssal bli et felles kirkerom. Det er pulttak både over kirkerommet og menighetssalen med høyeste parti mellom kirkerom og menig-hetssal. Korpartiet er forholdsvis lavt, men et overlys gjør at taket ikke virker knugende. Forrommet til kirkerommet er lite. Kirkekaffe foregår i under-etasjen.

Nedenfor er vist forslag til en annen møblering av kirke-rommet, hvor de ulike hand-lingene får større spillerom og hvor kommunikasjonen med hverandre blir vesentlig bedre. Det er også foreslått et tilbygg hvor man får et møteplass både før og etter gudstjenesten.

Et galleri er foreslått der man kommer inn i kirken. Det gir en mykere overgang til det høye kirkerommet, og man kan finne en søyle å støtte seg til.

   
     
 
         
        TILBAKE