| LANGKIRKE PLAN 1 Fornyelse av kirkerommet | |||||||
|
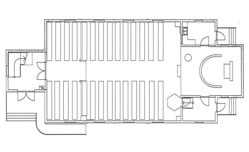
FØR FORANDRING
![]() |
|||||||
![]() |
|||||||
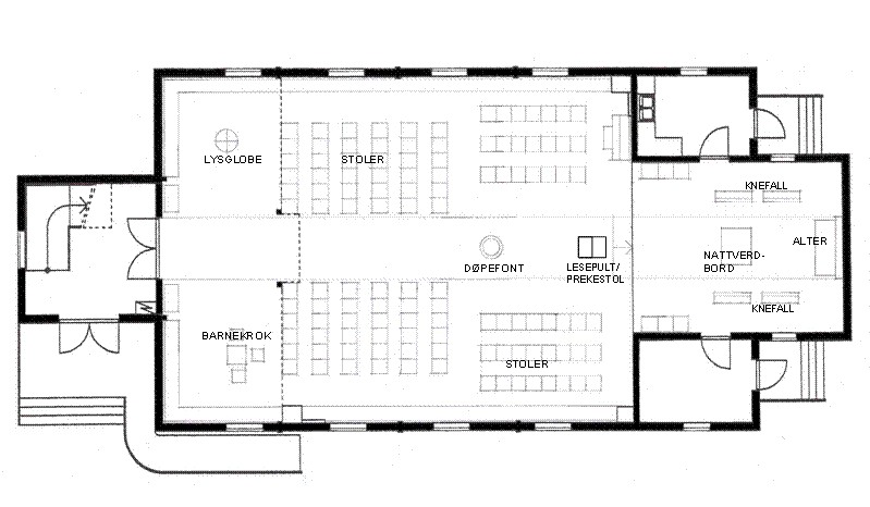
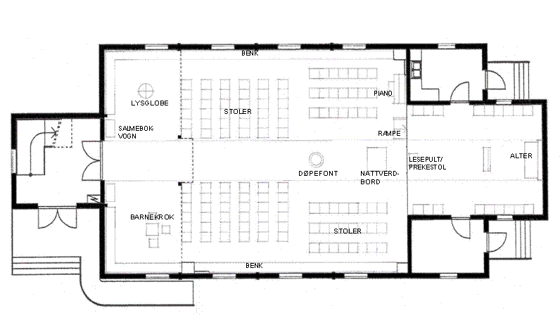
| FORANDRING 1 Alle benkene ute i rommet er tatt ut og delvis erstattet med stoler som kan stables og kobles. Langs ytterveggene er det benker med varmeovner under setet. Alteret med altertavlen er flyttet inntil fondveggen. Alterringen er tatt ut. I stedet er det korte knefallselementer som settes frem etter behov. Prekestolen er tatt ut og åpningen i veggen tettet. Som prekestol brukes en kombinert lesepult og prekestol. Rommet møbleres etter den type gudstjeneste / handling som skal foregå der. Se infoblad 1-2000 om alter, bordalter og nattverdbord og 2-2003 om "Å bli og å være". "Kirken som bygg og bilde" sidene 94 - 109. | |||||||
![]() |
|||||||
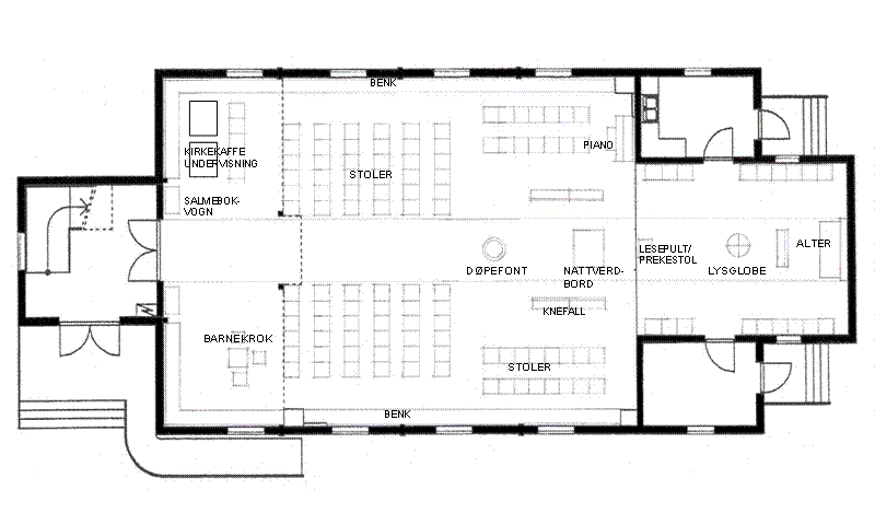
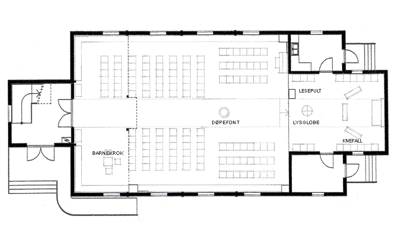
| FORANDRING 2 Her er knefall satt opp på sidene av nattverdbordet. Koret er møblert med lysglobe og knefall. Hit kan man f.eks. gå før nattverden. Under galleriet er det vist møblering for kirkekaffe eller undervisning. | |||||||
![]() |
|||||||
| FORANDRING 3 Nattverdbordet er her plassert i koret. Det er knefall på sidene. | |||||||
![]() |
|||||||
| FORANDRING 4 Korområdet er møblert for forbønn / skriftemål. | |||||||
![]() |
|||||||
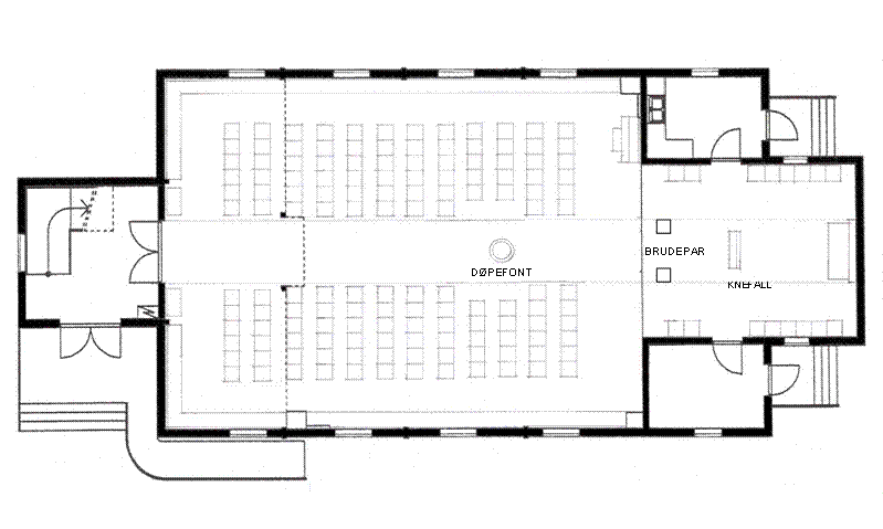
| FORANDRING 5 Vielse av brudepar. | |||||||
![]() |
|||||||
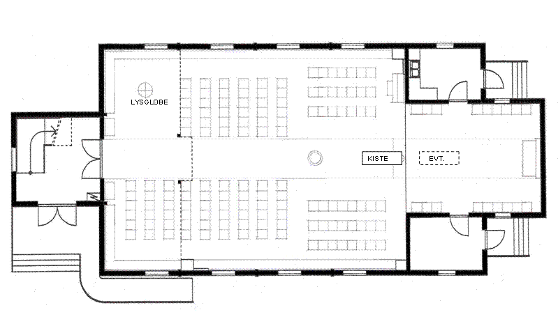
| FORANDRING 6 Gravferd med ulike plasseringer av kisten. | |||||||