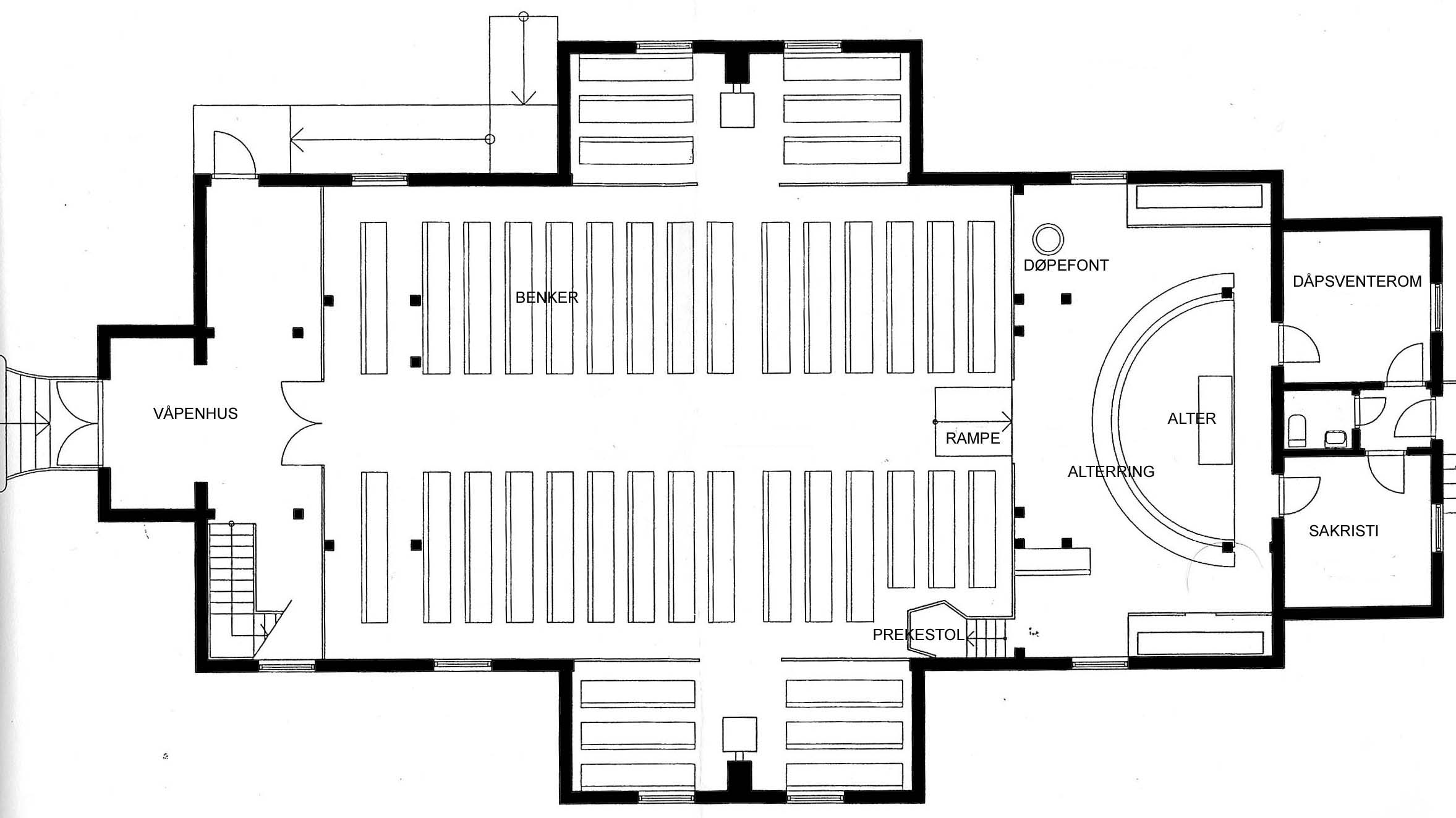
FORNYELSE AV VARTEIG KIRKE forslag  
     
             
   
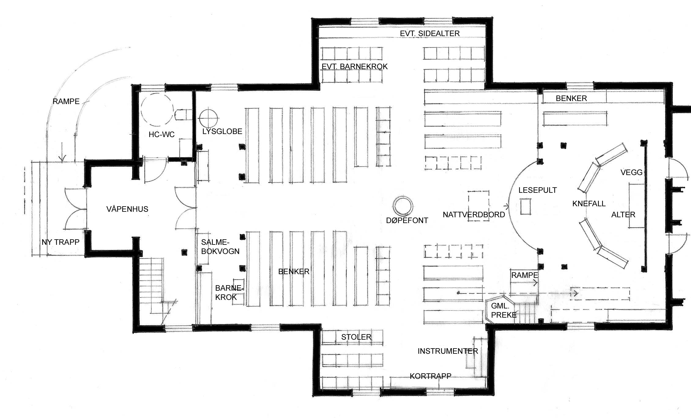
  Varteig kirke i Sarpsborg kommune ble vigslet 1859. Senere har kirken blitt endret. Dagens kirkerom har mange hindringer som setter begrensinger både når det gjelder symbolfunksjoner og praktiske funksjoner. Alterområdet er sperret av både  med skranker og søyler. Også sideskipene har skranker. I tillegg er det ett trinn. Her er også ovner som er ute av bruk.  
   
  I stedet for å komme inn en sideinngang, er rampen for rullestolbrukere lagt til hovedinngangen. Området ved nåværende sideinngang gjøres om til hc-wc.  Under galleriet ved hovedinngangen er det satt av plass til barnekrok, lysglobe og salmebokvogn. Den gamle døpefonten i stein er plassert midt i rommet. Nå er den plassert bortgjemt bak en skranke. Gulvet i sideskipene er senket til nivå med hovedgulvet, og skranker er tatt bort. I sideskipene blir det fleksibel møblering. Også piper og ovner er tatt bort. Skranken mot koret er tatt bort, og rampe er plassert ved siden av prekestolen. Korpodiet er trukket ut i skipet. Møbleringen mellom døpefonten og alteret blir fleksibel. Den store alterringer er erstattet med flyttbare knefall. Bak alteret er veggen forlenget til sidene for å hindre sikt til sakristidørene.  
        FORNYELSE TILBAKE